PRODUCT- 設置場所から探す -
特長
1)JIS A 4722 に準拠した駆動装置設計。
※但し、減速機仕様では、JIS 規格の規定値である220N(日常的に操作しない場合)を超えるため、JIS 規格に準拠できません。
2)CAN通信を使用したNABCOネットシステムを採用
・リアルタイムでの相互監視と自己診断機能による安全作動で事故を防ぎます。
3)減速機仕様では、最大ドア質量2000kg(片引き時)までの扉を開閉可能
仕様
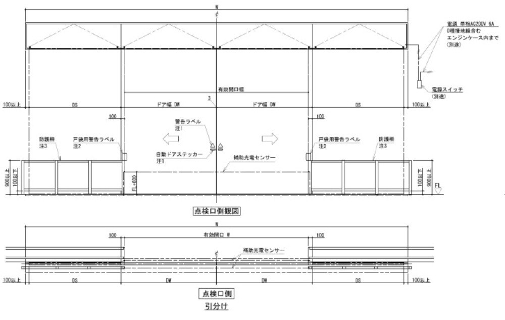
姿図:引分け
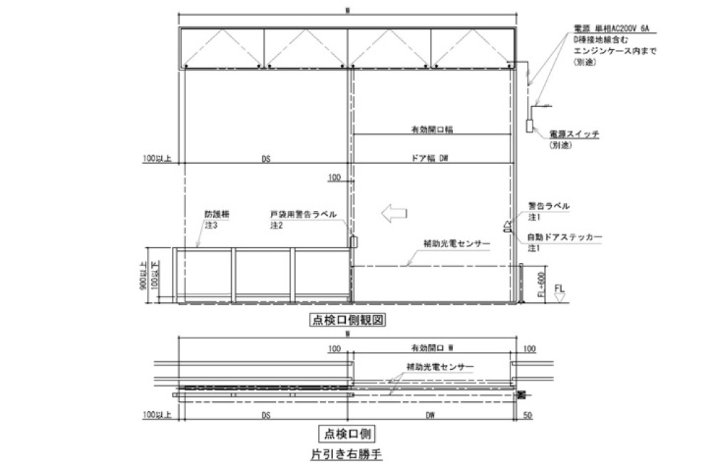
姿図:片引き
V-500SL PDFデータ
×
| 寸法等 | 図面データ概要 | ファイル名 | ダウンロード |
|---|---|---|---|
| 最大適応ドア単体質量 超重量扉 片引き:〜1000 引分け:〜500 | V-500SL 標準仕様納まり参考図(姿図) | V-500SL_standard_elevation | ダウンロード |
| 最大適応ドア単体質量 超重量扉 片引き:〜1000 引分け:〜500 | V-500SL 標準仕様納まり参考図(縦断面図) | V-500SL_standard_section | ダウンロード |
| 最大適応ドア単体質量 超重量扉 片引き:〜2000 引分け:〜1000 | V-500SL 減速機仕様納まり参考図(姿図) | V-500SL_reductiongear_elevation | ダウンロード |
| 最大適応ドア単体質量 超重量扉 片引き:〜2000 引分け:〜1000 | V-500SL 減速機仕様納まり参考図(縦断面図) | V-500SL_reductiongear_section | ダウンロード |
- 著作権・免責・使用権・内容変更についてのご注意
-
- CADデータ一式の著作権および所有権は、ナブテスコ株式会社が所有しております。
- CADデータの一部または全部を弊社に無断でコピーすることは、法律で禁止されています。
- CADデータについて、弊社の事前の承諾なく 1)営利目的で使用すること 2)他のネットワークへの転籍 3)雑誌などに許可なく記載することにつきましては、かたくお断り致します。
- CADデータのご使用で生じた直接的、間接的な損害・問題に対して弊社は一切の責任を負いかねますので、予めご了承下さい。
- CADデータのダウンロードは、お客様の責任において行って頂きますようお願い致します。
- CADデータは、商品の改良・統廃合などにより、予告なしに内容を変更・改編する場合があります。予めご了承下さい。
V-500SL CADデータ
×
| 寸法等 | 図面データ概要 | ファイル名 | ダウンロード |
|---|---|---|---|
| 最大適応ドア単体質量 超重量扉 片引き:〜1000 引分け:〜500 | V-500SL 標準仕様納まり参考図(姿図&縦断面図) | V-500SL_standard_full | ダウンロード |
| 最大適応ドア単体質量 超重量扉 片引き:〜2000 引分け:〜1000 | V-500SL 減速機仕様納まり参考図(姿図&縦断面図) | V-500SL_reductiongear_full | ダウンロード |
- 著作権・免責・使用権・内容変更についてのご注意
-
- CADデータ一式の著作権および所有権は、ナブテスコ株式会社が所有しております。
- CADデータの一部または全部を弊社に無断でコピーすることは、法律で禁止されています。
- CADデータについて、弊社の事前の承諾なく 1)営利目的で使用すること 2)他のネットワークへの転籍 3)雑誌などに許可なく記載することにつきましては、かたくお断り致します。
- CADデータのご使用で生じた直接的、間接的な損害・問題に対して弊社は一切の責任を負いかねますので、予めご了承下さい。
- CADデータのダウンロードは、お客様の責任において行って頂きますようお願い致します。
- CADデータは、商品の改良・統廃合などにより、予告なしに内容を変更・改編する場合があります。予めご了承下さい。

